WELCOME TO

249 highfield Road

TORONTO, Ontario

Photo Gallery

3D Virtual Tour

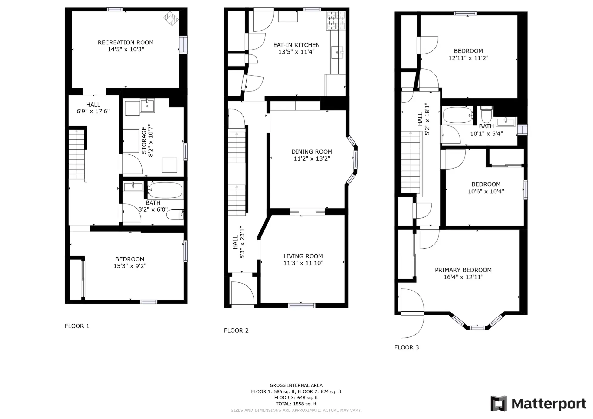
Floor Plans

Map

Share this Property

Powered by